• 联系人:frank
      E-mail:frank@ausproperty.cn
      联系电话:4008 531 233
      点击这里给我发消息

       

    Discovery Point

    Loading images...
    项目简介:

    项目新闻(详情点击):

    Discovery Point悉尼水岸公寓基本资料

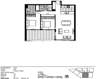
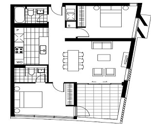
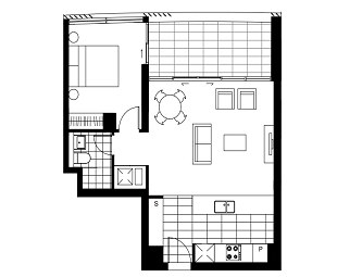
    Discovery Point悉尼水岸公寓外观图与楼面图

    Discovery Point悉尼水岸公寓项目特点

     

         Discovery Point悉尼水岸公寓由于稀有的地理位置以及卓越的物业品质,Discovery Point受到买家热捧,目前第五期Arc已售完。让我们期待2012年底最新一期的发售吧。

         Discovery Point悉尼水岸公寓公共交通设施完善, 往来市中心, 新南威尔士大学均十分便利 距离悉尼市中心仅 10 公里 毗邻购物中心和会所 全方位的水景以及有各种公园和园林作为陪衬 生活设施一应俱全 项目全部采用精装修 年租金回报率5%。
         Wolli Creek位于悉尼南面的Botany海湾边,这个小区的现代公寓群是Princess HWY上显著的标志。Wolli Creek离悉尼机场近,但由于飞机飞行方向不经过小区,据我们已经入住的客户说飞机的声音基本听不见。
         Wolli Creek是去Rockdale, Hurstville的必经之路。这里是两条铁路的交叉口,所以有两条线可以从回家,而且是个大站,除了Ccountry Link,其他快慢车都必停。离Redfern火车站仅有一站之隔,去悉尼大学非常方便,接下来的站点就是Central和 Townhall,10分钟火车必到CITY, 是南区的首站。

    客户询问表:
    019
    基本信息
    类型: 公寓 所在区域: 悉尼Wolli Creek区
    属性: 一手房 交房时间: 2013年底
    房型: 一房,二房,三房 房产价格: 40-80 (万澳元)
    规模: 多栋公寓及两栋写字楼 可售套数: 第五期已售完,期待第六期
    人气: 开发商: Australand
    地址: 8 Brodie Spark Drive, Wolli Creek,Sydney
    项目特色:

     Discovery Point悉尼水岸公寓位于 Cooks 河畔上, 是商业中心区的核心位置,升值空间巨大。距离悉尼市中心仅 12 分钟车程,Discovery Point 为综合发展项目,包括住宅、购物中心、商业大楼及食肆。精心设计的单位类型适合不同人士的需求。
         Discovery Point悉尼水岸公寓一站火车到悉尼国际机场,距离悉尼大学和新南威尔士大学不到 10 分钟的车程,租赁市场活跃,为良好的租金回报提供了保障。
         Discovery Point悉尼水岸公寓提供了现代优质生活的每一个重要元素。包括火车站,水滨休闲大道,购物中心,各式主题餐厅及商业区。河畔娱乐休憩区,内有多间咖啡室和餐厅;2.3公顷河畔公园,备有野餐及烧烤设施;另有小区配备恒温游泳池和健身房,均免费供住客使用。公寓下面有属于自己的便利店,干洗店,医疗中心还有牙医诊所,火车站附近有新东方超市,里面亚洲食品非常全。
         Discovery Point悉尼水岸公寓小区各种设施十分齐全,24小时保安巡逻加很多摄像头。Discovery Point也是W L区离火车站最近的一个公寓,最多三分钟走到。
         Discovery Point悉尼水岸公寓最吸引人的是小区超美的景色,从房间和阳台都能看到园林、河畔或者都市景色,楼下是一个教堂和大公园,公园后面是一条河(但里面是海水),所谓上风上水,相当心旷神怡,在这里住是一大享受。

    开发商简介:

    Australand-澳洲开发商是澳洲最大的房地产开发商之一,具有80多年住宅物业开发及营运的丰富经验...【详情点击


  • 总代理:

    澳洲新地集团-澳洲房产中介【详情点击


  • 客户服务经理:

    联系人:frank
    E-mail:frank@ausproperty.cn
    联系电话:4008 531 233
    点击这里给我发消息