周边设施
步行13分钟到达墨尔本皇家理工大学
步行26分钟到达墨尔本大学
步行8分钟到弗林德斯街火车站
步行10分钟到联邦广场
步行2分钟到Melbourne GPO购物中心
步行3分钟到柏克商业街
步行12分钟到皇冠赌场
步行8分钟到唐人街
内部设施
Tower Melboure内部设有非常多的娱乐设施
包括游泳池、健身房、桑拿及蒸汽房、瑜伽教室
另外还有用餐区,豪华休息区,平台花园让住户可以和朋友享受到舒适的生活体验
| 基本信息 | |||
| 类型: | 公寓 | 所在区域: | 墨尔本CBD区 |
| 属性: | 一手房 | 交房时间: | 2016 |
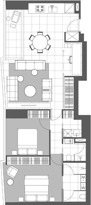
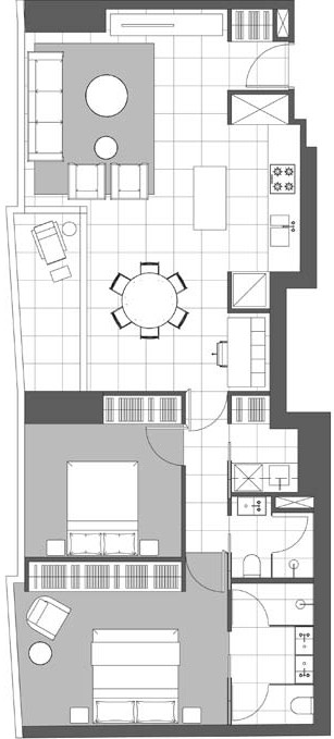
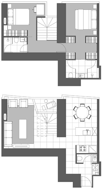
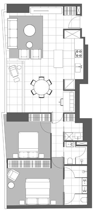
| 房型: | 一房,二房,三房 | 房产价格: | 41-250 (万澳元) |
| 规模: | 可售套数: | ||
| 人气: | 开发商: | CEL AUSTRALIA | |
| 地址: | |||
Tower Melbourne 乙渐渐演变为墨尔本城市的象征,它的标新立异与离经叛道深受人们喜爱,它不仅拥有世界多元化环境,生活设施更是极其便利。
大楼屹立高地之上,地处CBD主要路口,购物区Bourke Street以及商业区Queen Street均位于墨尔本城市中部的中心地段。
Tower Melbourne集合了国际大都市人口密集、休闲娱乐场所多和文化丰富多彩等特点,集优秀之大成,使之完美融合。建筑物本身既反映了作为维多利亚州伟大城市的旧墨尔本,又体现了如今现代大都市的特色。
每套公寓的面积宽广,以保证极好的舒适度,尽享阳光、美景与新鲜空气。建筑立面跨过整个区域,使住户在每一套公寓都能将城市多个不同方位的景观尽收眼底。
试想一幢外形纤细修长、姿态扭曲的大厦——我们创造了一个连续而不断演变的形态,一座与太阳、天空交相呼应的奢华雕塑。这在当今世界来说是一个独一无二的建筑,既大胆创新又优雅别致