• 联系人:frank
      E-mail:frank@ausproperty.cn
      联系电话:4008 531 233
      点击这里给我发消息

       

    Central Park

    Loading images...
    项目简介:

    项目新闻(详情点击):

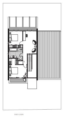
    中央公园Central Park墨尔本别墅主推房型

     

    中央公园Central Park墨尔本别墅周边情况介绍:
    •著名的墨尔本莫纳什大学 (12 公里)
    •莫纳什医疗中心 (8.9 公里)
    •墨尔本南部首屈一指的大型购物中心 Southland Shopping Center(800米左右)
    •大型连锁商场 DFO (3.5 公里)
    •Sandringham 医院 (5.6 公里)
    •高尔夫球场

    交通情况:
    附近的火车站
    Frankston线
    Cheltenham
    Highett
    Mentone
    公车线路到达
    Westfield Southland Shopping Centre(Southland 购物中心)
    Monash University(莫纳什大学)
    Monash Medical Centre(莫纳什医疗中心)
    SmartBus Orbital - South-East to West Melbourne.
    附近主要公路
    Nepean Highway
    Warrigal Road 

    客户询问表:
    007
    基本信息
    类型: 联体别墅 所在区域: 墨尔本Cheltenham区
    属性: 一手房 交房时间: 2013年中
    房型: 三房 房产价格: 53.5-85 (万澳元)
    规模: 4期 可售套数:
    人气: 开发商: R.corporation
    地址: 100 Cavanagh St Cheltenham VIC 3192
    项目特色:

         中央公园Central Park墨尔本别墅位于墨尔本最成熟的东北区富人地带,拥有宁静上品生活的同时,生活娱乐设施无所不备,散发活跃姿彩的生活元素,为人熟知的Brunswick、Carlton或Preston区,都是购物、娱乐和休闲的最佳胜地。
         只需9公里,即远离城央的喧哗,享受大自然的舒适和宁静,配套的郊野公园进驻每个角落,除了紧靠Coburg Hill的Edgars Greeks 外,还有Merrill Greeks、Jackson's Resever及Edgars Lake等溪流湖泊保育区,带您进入一个零压力、零烦恼,完全放松写意的世界。

    开发商简介:

    R Corporation澳洲开发商凭着在墨尔本市区创造新的生活方式方面的良好记录,R Corporation一直处在现代商业和澳洲房产开发的前沿...【详情点击


  • 总代理:

    合纵海外-澳洲房产中介【详情点击


  • 客户服务经理:

    联系人:frank
    E-mail:frank@ausproperty.cn
    联系电话:4008 531 233
    点击这里给我发消息