• 联系人:frank

      E-mail:frank@ausproperty.cn

      联系电话:4008 531 233

      点击这里给我发消息

       

    Stamford

    Loading images...
    项目简介:

         周边及设施

         Stamford Residences 公寓位于悉尼市中心,靠近悉尼歌剧院,环形码头,皇家植物园,麦考里夫人座椅,高档餐馆和主要公交车站。

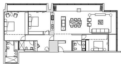
         面积为 133 平米拥有2间卧室的公寓位于 Stamford Residences 大楼的 18 层,位于大厦的东北角并可欣赏悉尼港湾的优美风光。

         所有房间均为朝北向阳,拥有超大面积的客厅,地面铺设有镶花地板,带花园凉亭和开放式厨房。主卧含入墙柜和豪华浴室套间,并可通往阳台。次卧也带入墙柜,家庭用浴室和洗衣房。公寓带有安全停车位,楼顶花园,露天烧烤区,室内泳池和健身房。

    客户询问表:
    062
    基本信息
    类型: 公寓 所在区域: 悉尼Gloucester Street, The Rocks区
    属性: 一手房 交房时间:
    房型: 二房,三房 房产价格: 183-440 (万澳元)
    规模: 122 可售套数:
    人气: 开发商: Stamford land corporation
    地址: Gloucester Street, The Rocks, Sydney
    项目特色:

         这是最后的加入悉尼一流社区的机会

         Stamford坐落在The Rocks历史名胜区极佳的地理位置,这将成为这座城市中最好的和独有的发展项目之一

         Stamford包含了了122套公寓和5套奢华带露台的套房,这些完美的住宅将带动新一轮该街区的零售和商业空间的发展。

         独特的物业建筑体现在各个方面,从高雅有现代的建筑到史无前例宽广又奢华的细致内部设计。

         这个独特的开发将创造历史,它将成为最后一个被The Rocks允许的住宅区——悉尼首屈一指的居民区。而这样一个享有特权的机会不会再出现。

    开发商简介:

    Stamford Land Corporation Ltd是澳大利亚最大的业主经营的豪华酒店【详情点击


  • 总代理:

    征招全球代理商


  • 客户服务经理:

    联系人:frank

    E-mail:frank@ausproperty.cn

    联系电话:4008 531 233

    点击这里给我发消息