• 联系人:frank
      E-mail:frank@ausproperty.cn
      联系电话:4008 531 233
      点击这里给我发消息

       

    Orchard Grove

    Loading images...
    项目简介:

    项目新闻(详情点击):

    澳洲政府NRAS十年住房租金补贴法案介绍

    墨尔本Orchard Grove别墅之Whittlesea主要增长型郊区

    墨尔本Orchard Grove别墅增长区的租金收益

    墨尔本Orchard Grove别墅之South Morang铁路扩建工程概述

    墨尔本Orchard Grove别墅项目分析

    墨尔本Orchard Grove别墅项目推荐理由

     

         Doreen和Mernda位于约20公里墨尔本北部,是Whittlesea市议会的一部分,而且被维多利亚州政府指定为5个主要发展区之一。同样作为拥有众多环境资产如大片的草地和红枫林,这样具有吸引力的风景区并且该地区主要的就业区域,受到邻近大范围幅度的城镇扩展而生机勃勃。Whittlesea预计到2031年人口增长到65,000人,至少需要新建房32,000套。目前吸引了很多的年轻家庭前来,而这一地区又计划建造更多的适合不同家庭需求的多种类型的房子。Whittlesea地区房子的中位价是$177,500,并且目前有23个住宅项目正在进行中,预计将建造23,600套新房屋。城市环路和Hume(休姆)公路为通向墨尔本机场,墨尔本港口和洲际航线提供了重要的交通联接。

    客户询问表:
    028
    基本信息
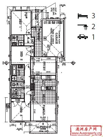
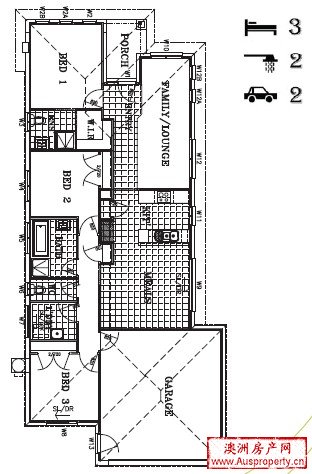
    类型: 独栋别墅 所在区域: 墨尔本Doreen区
    属性: 一手房 交房时间: 土地交割后6个月内
    房型: 三房,四房 房产价格: 39-43 (万澳元)
    规模: 100 可售套数: 9
    人气: 开发商: Simonds
    地址: Fitzwilliam Drive,doreen
    项目特色:

         墨尔本Orchard Grove别墅是墨尔本乃至整个维州最大的新型别墅项目群,社区附近既是墨尔本最大湿地公园,社区环境十分优美,各种公共设施齐全,是一个完美的不可多得的项目。非常受当地居民的欢迎,且有NRAS项目补助计划(为了缓解澳大利亚住房的严重短缺的困境,澳大利亚政府出台“国民租房补贴计划”的法案,即 National Rental Affordability Scheme,简称“NRAS”),所以项目极具投资价值,机不可失。现在此项目也仅剩9套,这样的项目是首次澳洲投资者的极佳选择。NRAS计划是要求投资人将其投资的房产租金降低20%,投放到市场上给那些符合条件要求的人群;而政府每年会给予投资人近1万澳币的补助,其补助随CPI指数调整增加。政府的补助是提供给投资者本人, 而且是免税的收入。十年您将获得将近12万澳币的补助,等于您的首付款。最新消息:澳洲NRAS指标2013年不再发放。机会难得,不可错过。

    开发商简介:

    Simonds-澳洲开发商的故事也许是澳大利亚成功故事的一个缩影。Simonds家族世代从事建筑工作,他们的梦想是建造出澳大利亚最高品质的别墅...【详情点击


  • 总代理:


  • 客户服务经理:

    联系人:frank
    E-mail:frank@ausproperty.cn
    联系电话:4008 531 233
    点击这里给我发消息