黄金海岸奢华海景公寓ORO
508 Marine Parade Biggera Waters QLD 4216 澳大利亚
交房时间:2017年12月 在售
黄金海岸 公寓 一手房 三房
1495000澳元起
澳洲房产网
18616506111
18616506111
18616506111
508 Marine Parade Biggera Waters QLD 4216 澳大利亚
交房时间:2017年12月 在售
黄金海岸 公寓 一手房 三房
1495000澳元起
ORO位于黄金海岸中北部一线临海社区,公寓的完美设计让您享受,Broadwater壮阔水域和城市延绵天际线,为你提供独一无二的海滨生活方式。
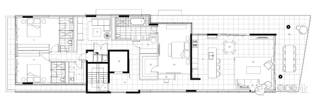
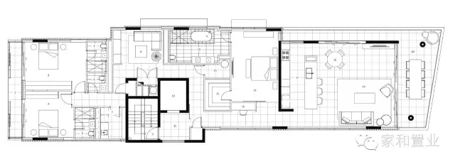
每套公寓独占一层楼,限量7套!!!
大面积公寓,面积为267平米-302平米;
三个卧室奢华宽敞,全部配有卫浴套间;
单独的多媒体/家庭活动室;
宽敞露台和阳台;
主卧室内有独立浴缸,和宽敞步入式衣帽间;
开放式厨房和餐厅;
业主专属的休闲娱乐区域Wavebreak:包括休息室、健身房、烧烤区和泳池区等;
安全私密的储藏室;全部公寓配有两个室内停车位;
三房海景公寓
价格:1,495,000澳币起;
预计交房时间:2017年12月

除此之外,ORO周围生活设施齐全,超市、医院、学校以及餐厅、咖啡馆、车站等都可以在短时间的步行或驱车到达;
5分钟驱车到达Harbour Town海港城购物中心,全澳最大的名牌折扣购物中心之一;
10分钟驱车到达Australia Fair购物中心,内有大型超市、百货、邮局、电影院等生活设施;
10分钟驱车到达黄金海岸大学医院;
10分钟驱车到达城市轻轨站;
10分钟驱车到达格里菲斯大学黄金海岸校区;
15分钟驱车到达南港男子学校—黄金海岸最好的私校之一;
20分钟驱车到达黄金海岸市中心—冲浪者天堂世界级海滩;
可方便进入高速公路50分钟到达黄金海岸国际、国内机场;
