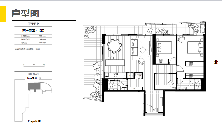
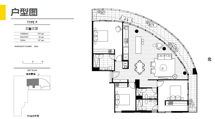
墨尔本南雅拉全新奢华公寓楼661 Chapel St
661 Chapel Street, South Yarra
交房时间:2018年年中 售罄
墨尔本 公寓 一房,二房,三房,四房,五房及以上
583000澳元 - 6680000澳元
澳洲房产网
18616506111
18616506111
18616506111
661 Chapel Street, South Yarra
交房时间:2018年年中 售罄
墨尔本 公寓 一房,二房,三房,四房,五房及以上
583000澳元 - 6680000澳元
配套设施:
• 私人宴会厅
• 观景台
• 户外烧烤区
• 25米泳池
• 宁静书室
• 全景健身房
• 水疗室
• 桑拿房
交通便利:
• 距离CBD仅4公里
• 出门即达电车站
• 南雅拉火车站——步行8分钟
• Flinders大街车站——2站
优质教育:
South Yarra以高质量教育闻名世界
囊括墨尔本高中,墨尔本文法学校等一线知名学府 生活休闲: 墨尔本富人和精英聚集地,国际名流首选目的地,两侧为富人区图拉克和时尚区普兰






