loading...
墨尔本南岸公寓Botanic
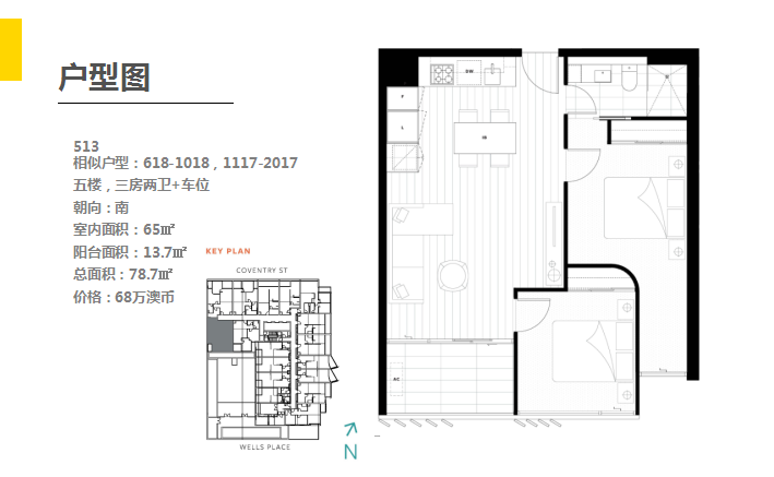
25-29 Coventry Street, Southbank
交房时间:2019年初 售罄
墨尔本 公寓 一手房 一房,三房
585000澳元 - 680000澳元
澳洲房产网
18616506111
18616506111
微信扫一扫
18616506111
























