墨尔本北极星社区NOVA·Bundoora
5 Nova Circuit, Bundoora, Melbourne
交房时间:2021下半年 在售
墨尔本 公寓,联体别墅 一手房 二房,三房
57.9万澳元起
澳洲房产网
18616506111
18616506111
18616506111
5 Nova Circuit, Bundoora, Melbourne
交房时间:2021下半年 在售
墨尔本 公寓,联体别墅 一手房 二房,三房
57.9万澳元起
NOVA TERRACE HOMES位于墨尔本东北部Bundoora区Polaris 3083 ‘北极星’ 社区,于中央商务区西北14公里处,占地11公顷,依托于墨尔本教育重镇Bundoora区,被UDIA评为最佳绿色友好社区之一。
超过35家零售商包括Woolworths,Dan Murphy和Chemist Warehouse。居民和邻居可以享受到与全球品牌,主要零售,商业,健康和美容提供商的即时连接,独特的国际化特色社区。

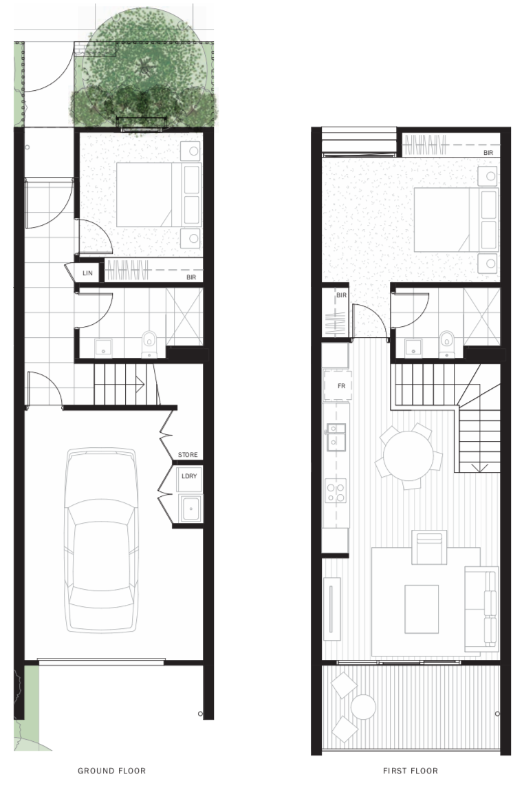
NOVA Heritage Terraces现推出22套风格独特的3层联排别墅和4套顶级公寓,延续人文经典,捕捉自然光影,配备宽敞厨房及客厅,周围树木茂盛,可饱览绿化草坪和玫瑰园美景。
传统客厅设有超高的天花板和传统的双悬式窗户,可俯瞰风景优美的草坪和成熟的树木。起居空间与现代厨房和就餐区相结合,配有典雅的细木工和精美的家用设施,例如欧洲SMEG电器与台下水槽,石凳和防溅板无缝融合。
THE CONTEMPORARY TERRACES拥有景观阳台,可从家中获得私密的视野,轻松地将室内设计与阳台和庭院的户外生活融为一体营造出宽敞豪华的空间感。走进完美无暇的两居室和三居室房屋,您会感受到最大程度的舒适度和实用性。每间住宅均以丰富、自然的材质组合,兼具美感、触感和质感。
THE HERITAGE TERRACES复古是新的时尚


THE CONTEMPORARY TERRACES现代致敬着经典


北极星社区周边有Strathallan 高尔夫俱乐部、Bundoora Park高尔夫球场、Gresswell Forest 野生动物保护区、Bundoora公园、Preston 棒球俱乐部、Norris Bank 网球俱乐部以及多家私立和公立医院。周边环境可谓是郁郁葱葱,鸟语花香。
住在这里,周末能带着家人去森林公园徒步,去看看野生动物、去参观农场和历史遗迹… 还有,一定不要错过 Mount Cooper,这里可是墨尔本的最高点,可以清晰看到完整的墨尔本城市夜景。
