悉尼公寓AVANTRA
659 - 669 Gardeners Rd, Mascot NSW 2020
交房时间:2016年 在售
开 发 商:Longton Property Group
悉尼 公寓 一手房 二房
700000澳币 - 1810000澳币
澳洲房产网
18616506111
18616506111
18616506111
659 - 669 Gardeners Rd, Mascot NSW 2020
交房时间:2016年 在售
开 发 商:Longton Property Group
悉尼 公寓 一手房 二房
700000澳币 - 1810000澳币
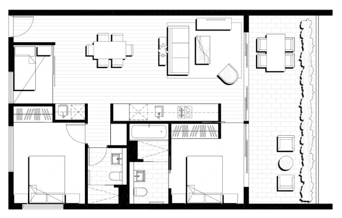
项目为四个多层的建筑组成的社区,其中2幢北塔为9层建筑,配有屋顶游泳池、屋顶花园和豪华会所;另外两幢南塔为13层建筑,顶层配有屋顶景观花园。
该楼盘位于悉尼Mascot中心地带,Mascot为悉尼高速发展的区域之一。Avantra智能公寓占地8,762平方米,位于669 Gardners Road,Mascot,其所在地交通及其方便,离悉尼机场快线Mascot火车站仅300米,搭乘该快线仅需八分钟即可到达悉尼中心商务区,仅需五分钟即可到达悉尼国际机场。另,附近还有多条巴士线路,可到达悉尼各主要城区。
随着生活方式的改变,现在越来越多的人希望住在城市附近,在享受便利和令人兴奋的市区生活的同时,也能享受社区提供的良好生活服务设施。由于缺乏适当的地方供人们交流,或者是因为缺乏富有吸引力和实用性的公共场所让公众积极参与和享受,传统的公寓生活并没有能满足人们的这一需求。另一个常见的不利因素是公寓楼的居民无法接收货物,或是无法享受当地购物中心提供的便利。MD+A 建筑设计公司提出“空中街道”设计概念,通过把传统的街道垂直叠加,并且把公共区域放在屋顶,在主楼之间建起空中庭院,从而成功的解决了这个问题。所有的公寓都拥有实用性强的私人户外空间,至少有3 米宽,可以容纳桌子和户外装备。
室内地面
卧室地面:Fabrica(美国)
地毯踏上毛绒和柔软的地毯给人天堂般的感觉。Fabrica 的地毯是世界上为数不多的可以为卧室增添无与伦比的舒适及温暖的地毯品牌。
Fabrica为要求最苛刻的高端住宅市场提供地毯,包括美国总统府白宫。Fabrica 以其精致的风格和卓越的性能赢得了国际认可,并且被冠以“业界最佳”的美誉。
厨房及卫生间地面:D’Imola ( 意大利 )
瓷砖铺设在潮湿地面的瓷砖需要同时具备耐用性以及艺术感。瓷砖从中世纪由意大利人作为建筑装饰开始使用在宗教及公共建筑的墙面及地面上。今天,意大利的瓷砖制造仍然为世界领先。其国内拥有 163 家瓷砖生产厂商,每年产量近 4 亿平方米。
CooperativeCeramica D’Imola 成立于 1874 年,是意大利最古老的陶瓷生产企业。如今,该公司在博洛尼亚省拥有 3 家工厂,生产多种具有独特设计及严格质量控制的现代优质瓷砖。
客厅及书房地面:Legno(澳洲)地板
自然,给人一种安全感。木地板因其温暖高贵的特质,成为客厅内的理想装潢,在这里你可以充分地放松和休息。 Legno 为澳大利亚知名的室内装修材料供应商,有着坚实行业基础和声誉,已有 20 多年生产一系列的石材和木材产品的历史。Legno严格控制其生产过程,以确保木地板的质量和品质。
厨房
德龙品牌是由德龙家族于 1902 年创立,其前身是一家小型的工业原件生产工作室。历史上德龙曾经作为一家便携式加热器和空调的主要生产商,现在其产品线已经发展到包括小型食物处理加工和烹饪、家居清洁和熨斗等各个领域。
今天,德龙拥有 13 家生产工场,并拥有 30家国际子公司,产品行销全球 75 个国家。它已在咖啡、高端的厨房和家居用品市场成为全球领导者之一。
浴室
Grohe起源于1911年建立的五金工厂,隶属于Berkenhoff & Paschedag,公司位于德国的 Hemer。公司在被Friedrich Grohe 收购之后更名为 Friedrich Grohe Armaturenfabrik。Grohe集团是目前欧洲最大的并且世界领先的卫生洁具用品供应商。Grohe为产品的品质,科技含量和设计严格把关,因此他们的产品才能带来如此完美的水流。
浴室地板采暖,可加热毛巾架和大尺寸的头顶花洒想象一下当你在寒冷的冬季早晨快速的冲进浴室,打开花洒的瞬间及被如瀑布般倾泻的热水所包裹。从头到脚,你的身体及被大量的热水温暖。当你走出淋浴间并拿起毛巾架上的毛巾,你的双脚首先感受到的是温暖的地板,而你的身体被干燥而温暖的热毛巾包裹。至此,痛苦的冬季早晨已经消失殆尽了。一旦你离开浴室,你可以让地板采暖继续工作一段时间,这样将能保证你的浴室干燥而清洁。
免费电视和卫星电视
大量的电视频道都由卫星以多语言向世界的各个角落发送。一旦安装了卫星电视接收器,观看这些频道将会是免费的。我们将完成安装卫星电视节目这个艰巨的工作,而您只需要放松并享受。
USB 电源插座我们的生活,现在都离不开通过 USB端口充电的电子设备和工具。纠结的电缆,形状不规则的接头可以使你的家里变得一团乱。为了保持 Avanta的公寓的整齐和清洁,我们将要在电源插座上安装 USB 电源插座,USB 设备将能轻松的充电。你只需将 USB 设备插入 USB 电源插座,您的电子设备将永远忙碌。
厨房垃圾处理器
没有垃圾处理器的现代厨房是不完整的。现在你只需简单的打开冷水龙头,把食物残渣倒到水槽中的食物处理器中。按下按钮,打开食物垃圾处理器,被磨碎的食品废弃物将被冲走。
食物处理器将使用InSinkErator这个位于 Wisconsin品牌。不仅仅是因为InSinkErator 是最大的垃圾处理器制造商,更因为他们早在 1927 年就已经发明了它。我们使用的参考型号是 Evolution 100,它不仅可以提供 0.7 匹的马力,而且自带 5 年的原厂保修。
公寓入口Samsung 可视对讲系统
Samsung指纹电子门锁
这组门锁系统使用双重安全控制系统,在楼宇内部和外部提供让您放心的安全服务。在大楼入口处您可以选择使用输入密码,使用 RFID 卡或者预先注册的智能芯片银行卡开启大门。至于每一户的房门,您可以使用4-12 位的安全密码,指纹或者传统钥匙打开。此方便用户的设计,为住户进出楼宇提供了最大程度的便利,同时最先进的机械结构提供了您家居最高程度的安全和保障。


