loading...
堪培拉Vaile Residences联排别墅
42 Fullagar Crescent, Higgins, Belconnen, ACT 2617
交房时间:2019年6月 在售
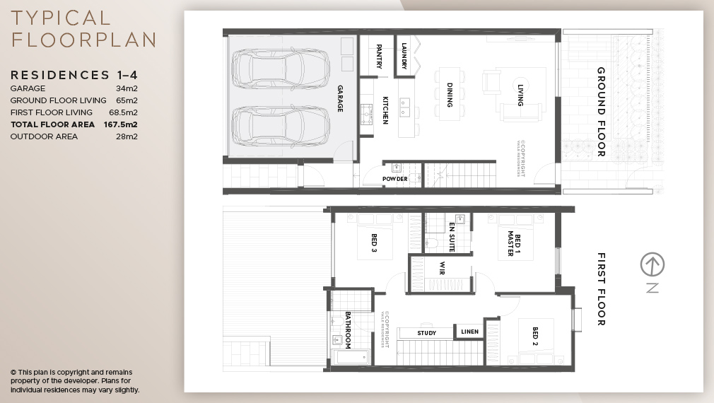
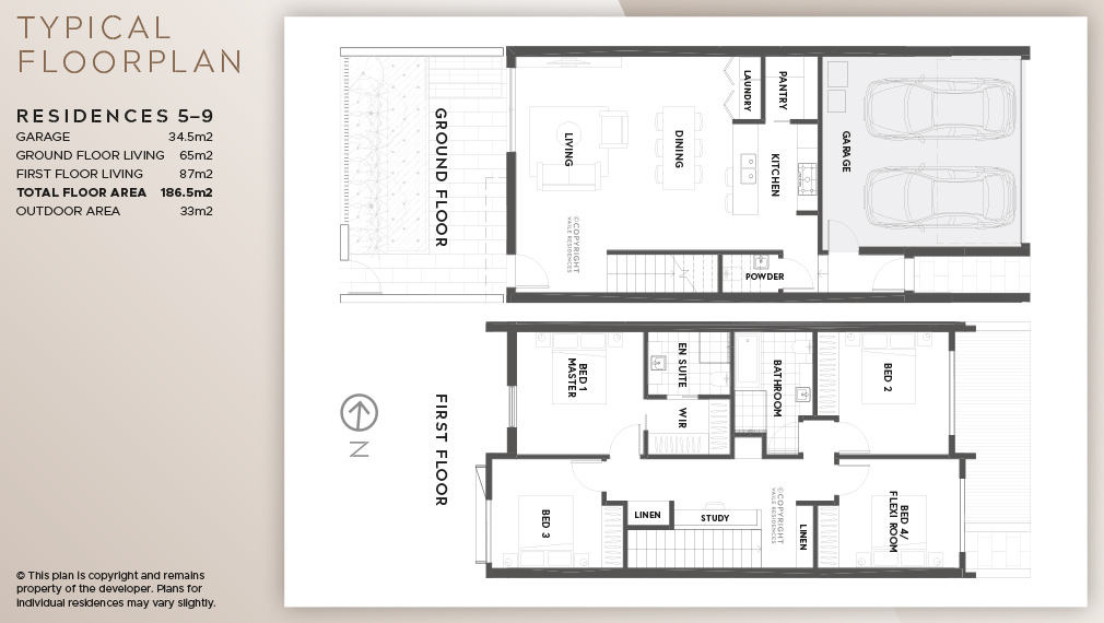
堪培拉 公寓,联体别墅 一手房 三房,四房
77.3万澳元 - 85.5万澳元
澳洲房产网
18616506111
18616506111
微信扫一扫
18616506111



















