The Terraces |布里斯班首个生态豪宅区
The Terraces,Tewantin Way,Brisbane,Queensland,Australia
交房时间:2016年12月 在售
布里斯班 独栋别墅 一手房 三房
580000澳元起
澳洲房产网
18616506111
18616506111
18616506111
The Terraces,Tewantin Way,Brisbane,Queensland,Australia
交房时间:2016年12月 在售
布里斯班 独栋别墅 一手房 三房
580000澳元起
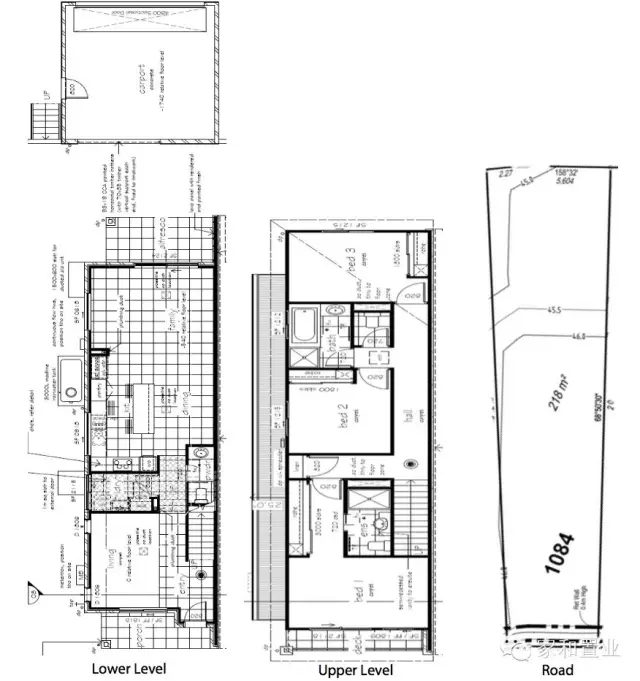
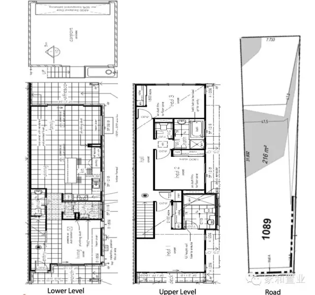
The Terraces项目位于布里斯班Rochedale社区,是布里斯发展最快的地区之一。The Rochedale Estates携手澳大利亚房地产开发的领先集团KFP,打造新兴的生态住宅社区。
Rochedale社区近10年内周边会有超过1000栋崭新的别墅,总规划面积超过120公顷,绿地面积占35公顷。一些列的生活设施也近在咫尺:学校,购物中心,餐厅,游乐场,野餐区域。
社区还配备一个专属的生活中心(Lifestyle Center),这是一个非凡的运动和生活设施场所,仅对小区居民开放,是亲朋好友聚会的好地方,您甚至还可以在这里开Party活着商务会议。Lifestyle Center 包括:
1个设施完善的健身房,180m2;
2个游泳池:25米恒温4道游泳池+度假休闲式泳池;
儿童水上乐园;
2个网球场;
24小时营业的咖啡厅;
3个烧烤区;
2个剧院;
多功能厅(可用于家庭聚会派对,商务会议等);
The Terraces项目距离布里斯班CBD约12公里,离学校,购物中心更是几分钟车程就能达到。这里上通往机场和黄金海岸的高速只需要两分钟车程,去市中心的高速M1也非常方便。

18分钟去往布里斯班CBD;
9分钟车程距离Garden City购物中心;
11分钟车程距离Westfield Carindale购物中心;
15分钟车程距离格里菲斯大学;
15分钟车程距离宜家(IKEA);
6分钟车程距离布里斯班科技园;
3分钟到达在兴建的Rochedale Town Center购物中心;

学前:
Rochedale State Pre-School (2.5KM)
Little Tots Child Care Center
小学:
St. Peter's Catholic Primary School (3.9KM)
Rochedale South State School (4.2KM)
Rochedale State School (2.5KM)
中学:
Rochedale State High School (3.3KM)
*该区域内还有著名私校Redeemer Lutheran College, 2015年全澳洲排名35!学院课程从学前直至高中12年级;
