黄金海岸神仙湾独栋别墅MELIAH
Sanctuary Cove, Hope Island, Queensland, Australia
交房时间:2016年 在售
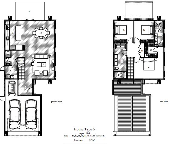
黄金海岸 独栋别墅 一手房 三房
1225000澳元起
澳洲房产网
18616506111
18616506111
18616506111
Sanctuary Cove, Hope Island, Queensland, Australia
交房时间:2016年 在售
黄金海岸 独栋别墅 一手房 三房
1225000澳元起
• 50分钟车程即可抵达布里斯班;
• 40分钟到达黄金海岸国际/国内机场;
• 20分钟车至黄金海岸著名沙滩—冲浪者天堂;
• 10分钟可达海港城购物广场;
• 5分钟可达神仙湾游艇俱乐部;
教育:库马拉圣公会学院(Coomera Anglican College)
• 学前班—高中12年级;
• 从神仙湾出发仅需10分钟车程;
• 学校提供优质校车服务,并有学校工作人员陪同等车,直至发车;
• 学院核心:想象,聆听,尊重。引导学生正确的道德观,价值观;
• 学校专注于学生们的全面发展,不仅在书本的知识,更重视德智体美的全能培育;
