loading...
黄金海岸希望岛奢华别墅Park Cove
71 Broadwater AveHope Island QLD
在售
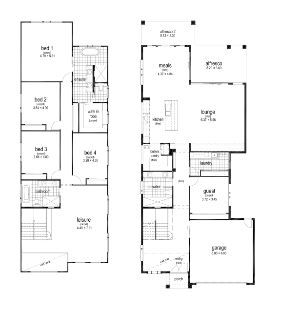
黄金海岸 联体别墅,独栋别墅 一手房 五房及以上
65万澳元起
澳洲房产网
18616506111
18616506111
微信扫一扫
18616506111



















