澳洲庄园土地新上市,真正世外桃源生活
Maudsland,GoldCoast,QLD
在售
黄金海岸 独栋别墅,土地 三房,四房,五房及以上
45.5万澳元起
澳洲房产网
18616506111
18616506111
18616506111
Maudsland,GoldCoast,QLD
在售
黄金海岸 独栋别墅,土地 三房,四房,五房及以上
45.5万澳元起
Tuxedo Junction
项目简介
超大土地,4000m2起
价格:455,000澳币起
可打造真正的别墅庄园生活
别墅可根据自己的需求设计

Tuxedo Junction
项目概况
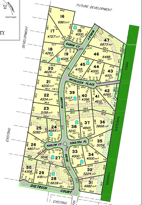
Tuxedo Junction位于黄金海岸北部内陆地区,坐落在Coomera River和Mountain Tamborine之间。项目第一期已售罄,已有很多豪宅已经建造完工。目前第二期土地正在热售中!这可能是您想拥有大面积土地最好的机会!

Tuxedo Junction第二期土地包括:
• 33块大面积土地
• 4000m2 - 6873m2
• 价格:455,000澳币起
• 已接入国家宽带网络
• 地下电力,全压自来水

项目适合人口增长型家庭,周边有宁静的公共绿地,迷人的湖泊和小溪,许多步行道,骑行小道,贯穿国家公园保护区,您可以在这里真正享受到远离喧少、世外桃源的理想生活。

Tuxedo Junction
地理位置

Tuxedo Junction属于黄金海岸内陆地区Maudsland,紧邻国家公园,但在得天独厚自然环境的包围下又不失便利。

- 毗邻黄金海岸主道M1 的62号出口,方便前往任何地方
- 25-30分钟左右可到达黄金中心冲浪者天堂
- 50分钟可到达布里斯班
- 10分钟内有多所学校
- 15分钟内可到达Helensvale Westfield大型购物中心、火车站、 Bunnings, Oxenford购物区等
- 仅5分钟左右就可到达Maudsland购物中心
- 可方便到达多个黄金海岸主题乐园

▲ Maudsland社区购物中心

▲ 黄金海岸最有名的夜市之一:Helensvale夜市

▲ Helensvale Westfield购物中心

▲ Helensvale交通枢纽站:汇集火车、公交和城市轻轨

▲ 第二期土地共33块