黄金海岸学区独栋别墅Camelot
109 Amity Rd, Coomera, QLD 4209
交房时间:土地交割后建房6个月 售罄
黄金海岸 独栋别墅 一手房 四房
47.9万澳元起
澳洲房产网
18616506111
18616506111
18616506111
109 Amity Rd, Coomera, QLD 4209
交房时间:土地交割后建房6个月 售罄
黄金海岸 独栋别墅 一手房 四房
47.9万澳元起
土地+别墅组合 节约印花税
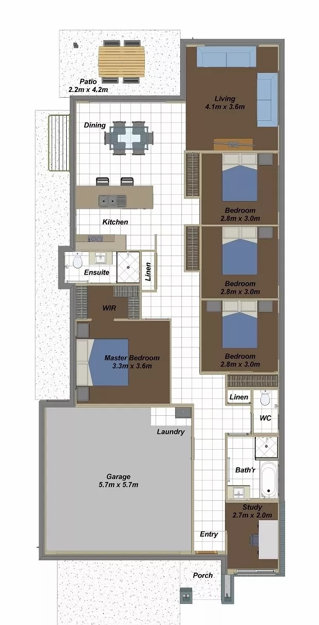
四房独栋别墅
5分钟至黄金海岸北部最大购物中心
10分钟内多所公立&私立中小学
价格47.9万澳币起
可包租

Camelot位于黄金海岸目前人口、基础建设、就业机会增长最快的北部长廊Coomera,是目前昆士兰州最具投资爆发力的地区之一,有本地著名开发商Choice Homes打造。
近年来,政府投资注入城市北部的投资超过30亿澳币,很多人称北部地区是目前城市发展的“涡轮增压”,带领整个地区到达了另一个层次。而Coomera Westfield购物中心的开幕更是推动了北部长廊房地产业的繁荣。

很明显,Coomera不再单单是黄金海岸和布里斯班之间的一道长廊,而是一个独立的新兴经济体。2011年的人口普查数据居住在Coomera的人口只有8793人次,而2016年的人口数据为13,305人次,涨幅达51.3%。于此同时,根据昆士兰房产局CoreLogic的数据显示,该地区5年内的房屋中位价增长了26.5%。

- Camelot社区位于Coomera中心地带,毗邻所有生活、娱乐设施
- 第三期新上市
- 4房独栋别墅,多种外观&户型可供选择
- 具体位置:109 Amity Rd, Coomera
- 土地面积:401-404平方米
- 别墅面积:180-190平方米
- 租金预测:约480澳币-510澳币/周
- 买家只需支付土地部分印花税,无需支付房屋部分
- 土地交割后,建房周期约为4-6个月
- 无物业管理费
- 市政费:约1500澳币/年




Coomera位于黄金海岸与布里斯班之间的黄金地带!Camelot项目距离布里斯班和黄金海岸中心冲浪者天堂分别为35分钟和30分钟车程。社区周边设施成熟,毗邻投资5亿澳币刚开幕的城市北部最大购物中心Westfield Coomera;另外,10分钟内可到达多所公立、私立中小学。

教育:
• 步行可至Coomera社区幼儿园
• 步行可至Coomera Amity公立学校
• 2分钟驱车可至Picnic Creek公立学校
• 2分钟驱车可至Coomera St Joseph死里学校
• 3分钟驱车可至Coomera Rivers公立学校
• 5分钟驱车可至Coomera Anglican私立学校
• 6分钟驱车可至Assisi Catholic私立学校
• 8分钟驱车可至Coomera Springs公立学校
• 10分钟驱车可至Saint Stephen’s私立学校
• 10分钟驱车可至Upper Coomera公立学校
购物:
• 2分钟驱车至IGA超市
• 3分钟驱车至Coomera East商圈
• 4分钟驱车至Westfield Coomera大型综合购物中心
• 8分钟驱车至Coomera Square
交通:
• 2分钟至Coomera公车站
• 4分钟至Coomera火车站
• 5分钟驶入M1高速公路,直通布里斯班&黄金海岸中心
休闲娱乐:
• 3分钟驱车至Gainsborough高尔夫球场
• 6分钟驱车至Coomera体育中心(英联邦运动会场馆)
• 6分钟驱车至梦幻世界主题公园
