黄金海岸希望岛滨水独栋Santa Monica
售罄
黄金海岸 公寓 一手房 一房,二房
售价请联系代理人
澳洲房产网
18616506111
18616506111
18616506111
售罄
黄金海岸 公寓 一手房 一房,二房
售价请联系代理人

高品质,大户型,独栋水景
别墅+土地组合
土地面积:401-538平方米
土地拥有11-12米的临水面,可建造码头
双层别墅面积:295 - 391平方米
土地+别墅:约109万澳币起
无任何建筑隐藏费用
两份合约,节省印花税
Santa Monica 概况
Santa Monica位于Coomera 河河口,邻近世界著名的神仙湾住宅社区、两座国际比赛标准各18洞的高尔夫球场(The Pines & The Palms),及希望岛渡假村高尔夫球场(Hope island resort)。Santa Monica是希望岛独一无二的临水社区。
Santa Monica全部土地都临水边,可以让您拥有奢华的水岸住宅且自豪于通往布罗德沃特 (Broadwater) 的便利性。 社区可建私人码头,可垂钓抓蟹,游艇十分钟就可驶入太平洋。

Santa Monica提供隐密、高质量与雅致的生活风格,这绝对不仅仅只是一条街,您将在这里体验到宾至如归的享受。有著专属地址的建筑设计式住宅,搭配著精心修整过的花园与富丽堂皇的气派入口,这无庸置疑的是Santa Monica最令人称羡的地方。

Santa Monica - 仅最后4套
▼ 别墅推荐 A
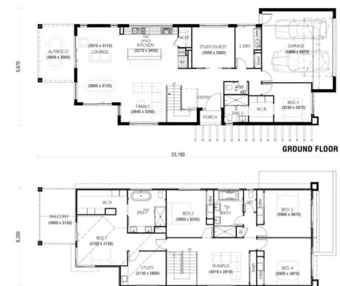
4房 2.5卫 2车库 1泳池 双层别墅
土地面积:401平方米
别墅面积:294平方米
别墅+土地组合:约109万澳币
如需建造码头:约2万澳币
▼ 别墅外观

▼ 户型图

▼ 土地面宽:约11.5米,可建私人码头

▼ 别墅推荐 B
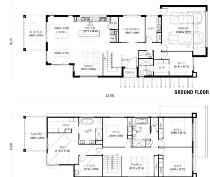
5房 3.5卫 2车库 1泳池 双层别墅
土地面积:538平方米
别墅面积:362平方米
别墅+土地组合:约127.5万澳币
如需建造码头:约20,000澳币
▼ 别墅外观

▼ 户型图

▼ 土地面宽:约11.5米,可建私人码头

▼ 卓越建筑标准
大金Dakin管道空调
40毫米云石台面
欧洲品质900毫米不锈钢厨房灶台和烤箱
内置NBN
全奢华系列内装
景观花园+专属泳池
项目实拍










Santa Monica 地理位置
希望岛位于黄金海岸的北侧,只要25分钟即可到达冲浪者天堂 (Surfers Paradise)这个繁华的商业与令人兴奋的夜生活中心。可直达M1高速公路意味著到昆士兰州 最有活力的首都,充满著文化与商务的布里斯班只要50分钟。

除此之外,出行购物方便,步行即可以到达滨海村购物中心(Marina Village Shopping Centre)。开车10分钟即可抵达Westfield购物中心,15分钟抵达澳洲最大折扣购物中心海港城(Har bortown)及Runaway bay购物中心。坐落于四通八达的绝佳地点。

步行可到Marina Village 购物中心;
5分钟车程进入M1高速公路;
5分钟车程到世界级高尔夫球中心;
10分钟车程到Westfield购物中心;
15分钟车程到海港城Harbour Twon购物中心;
15分钟车程到Runaway Bay购物中心;
50分钟车程到布里斯班机场;
40分钟车程到黄金海岸基础;
除此之外,仅仅几分钟的距离内拥有步行及自行车步道,网球场,高尔夫球场满足您的家庭娱乐;
Santa Monica 的生活方式
每一个精选的奢华住宅都分别有著艺术式的设计,可以充分享有迷人的水畔景致并将希望岛的精髓收至眼底。

▲ 建筑商Homecorp质量出色的风格见证独一无二的设计与质量,每个细节都经过精心的考量。有着高级的装置、配备与家具的设计师风格厨房与起居空间,以及豪华的不锈钢家电用品;

▲ 您可以尽情享有这无与伦比的水岸生活风格,并享受有著极大的阳台可以欣赏河道景致的宽广居住空间。不论是白天或夜晚都能为您的宾客带来乐趣,并享受这些精选的住宅所提供的生活风格;

▲ 别墅奢华的定义提升到新的高度,沐浴在阳光下的豪华空间卧房,以及有著高级莲蓬头、设备与石质台面的浴室。建筑设计式的起居空间让您感到放松的同时,也有着优雅与永恒的感受。