墨尔本大学学区精品公寓Found Carlton
23 Palmerston St,Carlton VIC 3053
交房时间:2017年底 在售
墨尔本 公寓,联体别墅 一手房 一房,二房,三房
440000澳元 - 1150000澳元
澳洲房产网
18616506111
18616506111
18616506111
23 Palmerston St,Carlton VIC 3053
交房时间:2017年底 在售
墨尔本 公寓,联体别墅 一手房 一房,二房,三房
440000澳元 - 1150000澳元
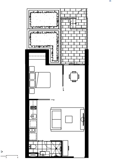
1. 层数:6(首层为联排别墅)
2. 车位:有,3房送2个车位
3.购买面积:55平方-170平方 实用面积
1.内部设计特色:现代时尚欧风
2. 色系选择:深色/浅色
3. 厨具:高端品牌 Bosch、Fisher&Paykel和 Omega
4. 设施:大量绿化重视生态环境。顶楼建筑外有绿色爬山虎的设计。
5. 电梯:有
1. 交通:
火车站:
墨尔本中央火车站
Flagstaff 火车站
Parliament 火车站
Victoria Park 火车站
Collingwood 火车站
North Richmond 火车站
公交:200,207,250,251,253(部分巴士直达市中心以及墨大校区)
电车:Tram 96, 1,8,112
2. 教育:
小学 Carlton Garden Primary School(小学)
中学:墨大附中,是墨尔本高考前十名的学校,此楼盘属于学区房顶级中学
大学:墨尔本大学澳洲八大之首步行8分钟
RMIT 皇家理工大学
3. 公园:
Carlton花园
Fitzroy 花园
Edinburgh 花园
Princes 公园
Royal 公园
4. 医院:
墨尔本皇家医院
墨尔本皇家儿童医院
St Vincent’s 私立医院
5. 休闲娱乐:
墨尔本博物馆
皇家展览中心
维多利亚州立图书馆
6. 购物:
WOOLWORTHS、COLES、 711 500米。
墨尔本CBD中央商务区 1.5公里
IGA大型连锁超市 1公里
意大利美食街Lygon St 650 米
Coles大型连锁超市购物中心 3公里
墨尔本中心大学购物城 Melbourne Central2公里
墨尔本唐人街 China Town 2.7公里
维多利亚女王市场Queen Victoria Market 3公里
