墨尔本Jubilee金禧湾独栋别墅
Wyndham Vale, Victoria, Australia
在售
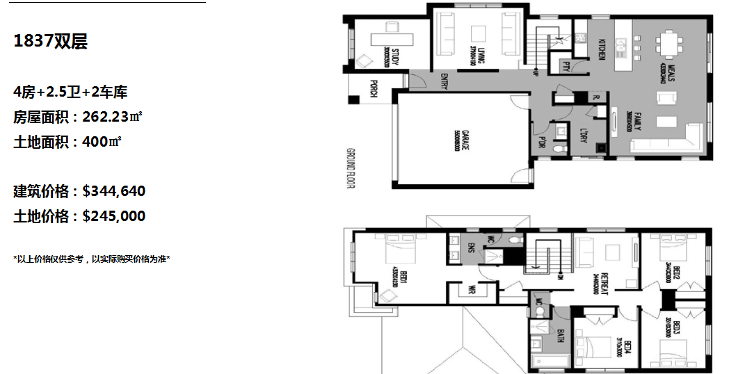
墨尔本 独栋别墅 一手房 三房,四房
47.5万澳元起
澳洲房产网
18616506111
18616506111
18616506111
Wyndham Vale, Victoria, Australia
在售
墨尔本 独栋别墅 一手房 三房,四房
47.5万澳元起

项目名称:Jubilee金禧湾
项目位置:墨尔本西南Wyndham Vale,距离CBD 约35km
项目规模:占地480万平方米,拟建超过7000套
项目特色:全澳唯一室内水上乐园、学校、购物天地、公园应有尽有。地铁就在家门口,25分钟车程便可体验市区繁华
土地面积:315㎡起;
项目价格:土地+房屋套餐:澳币47.5万起

Jubilee 金禧湾社区拥有完善的设施配套,政府规划在整个区域社区拟建20000套独栋别墅,其中Jubilee拟建7000套,是一个超大规模、可持续发展的绿色住宅区。Jubilee 金禧湾为你提供最优质贴心的服务,社区内部的每一处都盈溢着人性化、专业化的设计;舒适写意的环境、温馨愉悦的氛围、便捷迅速的交通完全满足你的日常需求。

Jubilee 金禧湾拥有11万平方米的体育场、自行车道、散步小径、中心社区公园、大型商业娱乐中心等设施场所,为你的生活增添光彩。一直致力打造精致的别墅项目,根据5个不同的设计风格特点, 创造出属于自己的设计体系。 每一处设计都充分展示了 设计师的设计灵感,每一栋别墅都从客户的角度去思考, 力求建造出完美无瑕的优质别墅。
潜力就是价值
1.5 公里韦里比河畔便捷,迅速的地铁线路,繁华的商业购物中心,拥有规模宏大的中央社区和就业中心。

最值得投资的社区
政府斥资逾3.7 亿澳元建造韦里比广场,新建成的铁路为 Werribee 韦里比新城区和Geelong 吉隆城区提供方便的交通运输方式和完善的基础配套设施,为当地经济发展注入强劲动力。
25分钟的吸引力
维州政府斥资48亿澳元新兴建的连接墨尔本西部与墨尔本CBD的地区铁路Victoria’s Regional Rail Link(途经Jubilee社区门口地铁站Wyndham Vale Station)计划于2015年中正式通车,届时仅需25分钟便可轻松前往墨尔本CBD。居住在Jubilee金禧湾就是居住在城市的最前线。
全澳唯一室内水上乐园

=投资澳币600万
=唯Jubilee金禧湾业主免费尊享
=独有室内沙滩
=大型豪华嬉水池
=25米环形健身泳池
=水上滑梯
=儿童戏水区






交通便利
Wyndham Vale火车站—2.1km 、Werribee火车站—7.5km 、Avalon飞机场—29km

优质教育
Victoria大学—12km、Wyndham Vale图书馆—2.7km、南十字女子小学—2.5km、Manor Lakes College中小学—2km

娱乐休闲
Werribee野生动物园—12km 、National Equestrian Centre—12km、 Werribee庄园—13km、 Werribee高尔夫俱乐部—13km 、Werribee赛马场—7.7km

