布里斯班内城区河畔景尚精品公寓PARC
West End,Brisbane
交房时间:2016年底 在售
布里斯班 公寓 一手房 一房,二房,三房
408000澳币 - 945000澳币
澳洲房产网
18616506111
18616506111
18616506111
West End,Brisbane
交房时间:2016年底 在售
布里斯班 公寓 一手房 一房,二房,三房
408000澳币 - 945000澳币
(1)优越的地理位置:项目位于布里斯班的West End区,距布里斯班CBD仅3公里,步行可至各类主要商业、娱乐及休闲生活设施中心。由于邻近布里斯班CBD且位于布里斯班河畔的优越地理位置,使得West End融合了时尚内城区生活方式及众多河畔休闲绿地的独特生活方式。
(2)无可匹敌的视觉景观:PARC属于大型项目GARDENS的最后一期,以难得一见的户型和优雅的设计,为整个项目划下了完美的句号。小区内配有专属游泳池、私人俱乐部以及近千平米的景观绿地。作为小区的最后一期工程,客户交房后即可享受所有高档齐全的物业配套设施。
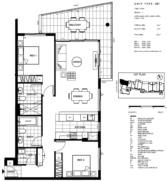
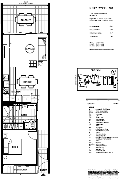
(3)绝无仅有的精品户型:PARC项目本身户型非常优异,是在澳洲难得一见的南北通透设计,户户朝阳,家家观景(北向可欣赏小区内带有泳池及绿地的中央景观,西侧更可一览布里斯班河上美景),大多数户型都带有北侧阳台和南侧入户花园,是澳洲公寓里难得一见的好户型。
(4)收益无忧的学区房项目:更值得一提的是,项目属于知名学校“布里斯班州立高中”的学区房划定范围,该学校设有8~12年级的完整课程,学生成绩优异,在整个布里斯班排名第三。只要成为这里的住户,无论是租赁还是购买,均可直接入学。由此可以预见,日后此项目的租金收益及价值增长一定会大大高于整个布里斯班的平均水平。
(5)便捷齐全的市政配套:项目所在位置亦拥有优质的市政配套。出门就有巴士站点;步行10分钟即可到达渡轮站,搭乘布里斯班著名的CITY CAT。为当地居民通往布里斯班CBD和各大主要地点提供了便利的公共交通设施,5分钟还可快速到达澳洲八大之一的昆士兰大学。
(6)丰富多彩的生活设施:项目旁边的Boundary街拥有众多时尚展厅、饭店、咖啡馆及夜生活场所,并拥有24小时开放的活动中心(双休日不休)。West End定期的农产品市场以及各类庆典活动不断吸引着整个布里斯班的游客。艺术中心、戏剧院及音乐中心也为人们带来了丰富多彩的视听享受。沿河可步行至布里斯班最主要的文化中心以及各类餐饮聚集地,Grey街还拥有世界各国美食餐馆。该项目是投资布里斯班的优质选择。 Gardens社区的前面三栋都创下整个布里斯班销售的神话,相信最后一期Parc上市将会创造新的销售纪录,这也是最后的机会入住此地。优越生活,从此开始!
设施:25米长的游泳池、健身房、BBQ、私人活动室、会客室、600㎡的绿化区域。
电梯:2部
色系选择:3种色系选择
内部设计特色:室内设计简约时尚、客厅配有木地板,共有3种色系可供选择,满足居住需求。大落地窗户南北通透,采光极好。
交通:
City Cat轮渡 600米
192路BUS 100米
教育:
昆士兰大学 1公里
布里斯班科技大学 3公里
格里菲斯大学 3公里
布里斯班州立高中 2公里
West end 公立学校 1公里
South Bank高等职业技术学校 3公里
医院:
Wesley医院 2公里
公园:
Orleigh公园 1公里
Davies公园 500米
Musgrave公园 2公里
South Bank公园绿地 2公里
市植物园 3公里
Roma街公园绿地 3公里
购物:
Market购物中心大型超市 800米
皇后大街购物广场 2公里
Barracks零售中心 2公里
项目交割以后会有一个大型购物中心落户项目旁边,距离100米,步行两分钟即可到达。
娱乐:
Boundary街餐饮&娱乐中心 900米
Hardgrave路餐饮中心 800米
布里斯班会展中心 2公里
现代美术馆 2.5公里
昆士兰艺术馆 2.5公里
昆士兰博物馆 2.5公里
昆士兰表演艺术中心 2.5公里
维多利亚高尔夫球场 3公里
