墨尔本西南区Werribee大型别墅住宅区博湖新城
Black forest road与Treeve parkway交汇处
交房时间:2016年 在售
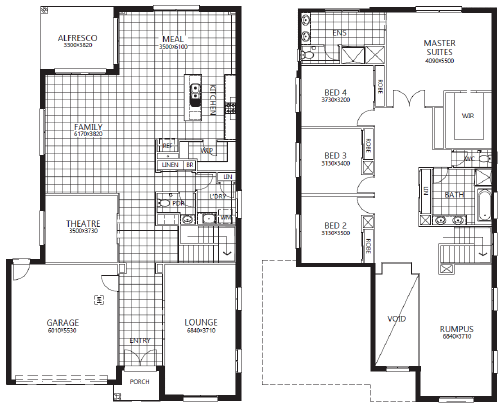
墨尔本 独栋别墅 一手房 四房
201000澳元起
澳洲房产网
18616506111
18616506111
18616506111
Black forest road与Treeve parkway交汇处
交房时间:2016年 在售
墨尔本 独栋别墅 一手房 四房
201000澳元起
Harpley博湖新城小区距离Werribee中心商业区仅3公里。且临近方便的Princes 高速公路,方便出行,其附近有即将开建的Regional Rail Link Station和已经建成通车的Werribee Station两大火车站,轻松去往北部城区和南部,还可随时前往国际和国内机场。
小区占地435公顷,包含住宅、零售、商业与休闲设施的综合社区,能为约12000个住房提供4000套崭新而舒适的住宅。小区还包括16公顷的运动场、12公顷社区花园、超20公里的步行道及自行车道、以及周边32公顷的Gary Davidson大自然保护区;在自身配套上,也拥有全方位配套的小区设施,四季常温游泳池、多功能体育馆、休闲设施,政府公立小学、中学一应俱全。
开发商计划斥巨资在周边建造8000 平方米海滨购物中心Waterfront Town Centre,总体规划开发周期为3~5年,Harpley属于前期的开发项目,性价比超高,坐拥长期升值空间,未来增值潜力无限。
在自身配套上,Harpley拥有全方位配套的小区设施,户外健身径、四季常温游泳池、多功能体育馆,每户均有最低一个车位配备。
1. 交通:
火车站:
WerribeeTrainStation2.2km
Regional Rail Link Station(即将开建) 500m
2. 教育:(规划中)
Government Primary School公立小学
Government Secondary School公立初高中
Independent Primary School私立小学
Kindergarten幼儿园
Childcare Centre托儿所
3.公园:
Adventure Park 200m
4.休闲娱乐:
Werribee中心商业区3.0km
