墨尔本富人区豪华学区房LANGFORD联体别墅
Surrey Hills, Melbourne
交房时间:2022年初0" target="_blank">澳洲房产开发商
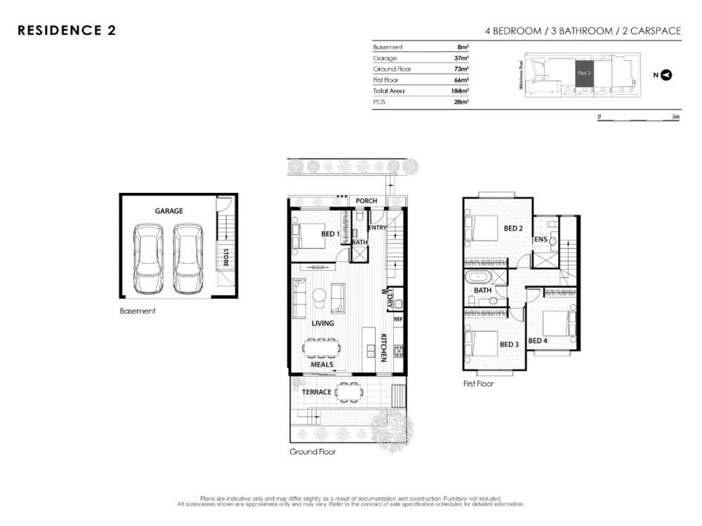
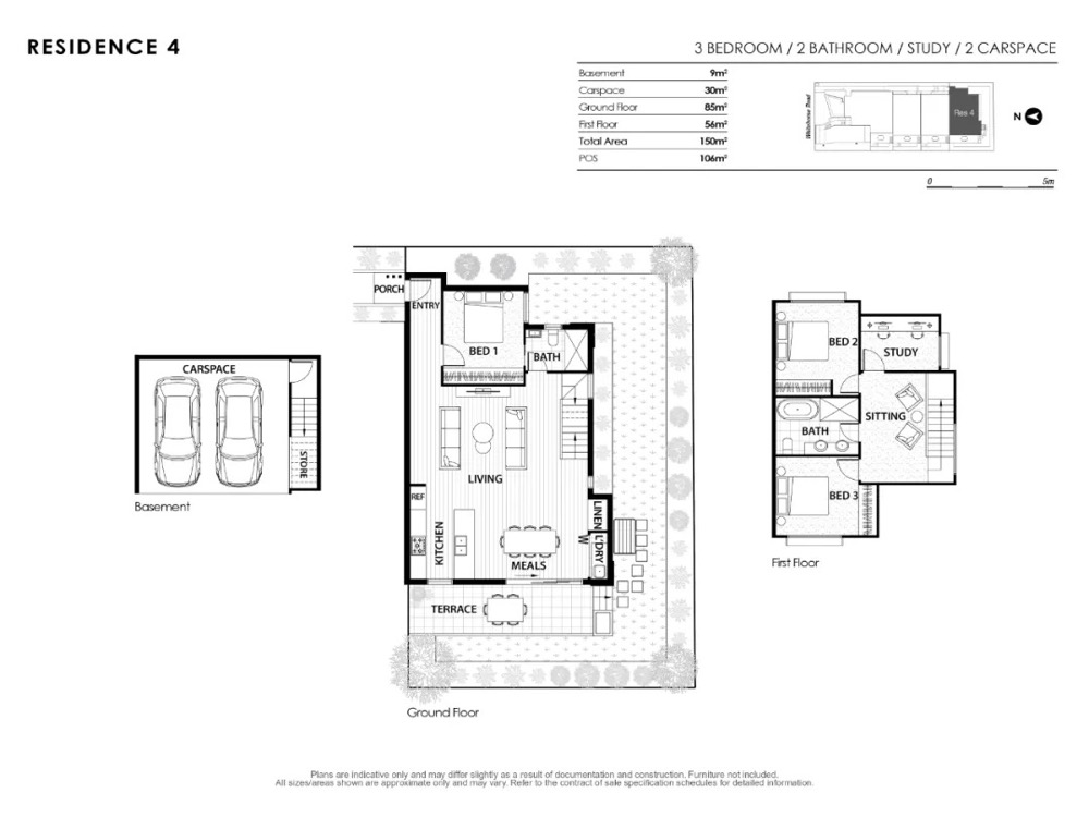
一手房 精装 三房,四房
联系代理
澳洲房产网
18616506111
18616506111
Surrey Hills, Melbourne
交房时间:2022年初0" target="_blank">澳洲房产开发商
一手房 精装 三房,四房
联系代理

Surrey Hills 最早在1841年,由Henry Elgar 先生私人拥有。在1882年,Surrey Hills 被规划和开发成住宅城区,新建了地铁车站和轨道,联通周边发达区域。Surrey Hills被誉为”English Counties District“ ,很多街道都是以英国不同的城市而命名的。如:Empress, Kingston, Surrey, Balmoral, Leopold, Windsor, Albert。 在Surrey hills 城区内,被种植了很多Pin Oak and Plane trees。象征着,传统英式的绅士和尊贵。

这里地处墨尔本东部富人区的核心地带,Surrey Hill(萨里山)的交通可谓四通八达,临近Eastern Freeway(东南高速路),便捷通向市区和东部各区。

厨房

最特别的是这次采用到了胡桃木色的橱柜设计,内部设计采用古铜色的五金配饰,尊贵又时尚,搭配浓郁的胡桃木色,呈现出浑厚质感,大理石纹中岛料理台,在厚重中给主人一丝清新。好像品尝着一道法国甜点,淡抹相依,恰到好处。
客厅

全屋采用意大利瓷砖,德国美诺Miele厨具家电,澳洲羊毛地毯,澳洲橡木地板。
庭院

后院凉庭,享受惬意的周末阳光
卫浴

特别要介绍
则是选用的Signorino意大利石材供应商
Signorino是 意大利顶级石材品牌。创始人John Signorino 从17岁就开始学习石材的运用。至今50年的时间,Signorino也是各大澳洲标志性建筑的石材供应商。上千种石材选择,配上意大利纯粹的加工工艺。每一片石材都是艺术品。


Signorino曾经作为多家殿堂级品牌的石材供应商
墨尔本大学艺术长廊

英国查尔斯王子曾经就读的吉朗文法学院,艺术3号楼

墨尔本市中心的Emporium购物中心

澳洲奢侈品牌女装Alice McCall旗舰店

顶级豪宅更是数不胜数

厨具品牌采用的德国殿堂级Miele
德国Miele在中国是家喻户晓的奢侈品品牌。品牌创立于1899年至今,100多年时间印证了可靠,值得信赖的品质和形象。也是业界唯一以长达20年使用寿命为测试标准的电器制造商。




地下停车库

安全,高档,对爱车更放心


区域介绍

Surrey Hills(萨里山)火车站共有Belgrave(本戈里富)和Lilydale(莉莉戴尔)两条火车线穿过,乘车20分钟直达墨尔本中央商务区。步行3分钟即可抵达电车站,沿途经过墨尔本各大顶级富人区商业街,直达市中心。

街坊邻里

周围邻居大部分都是当地人,西边是墨尔本排名前三的高档区Canterbury,南边是传统好区Camberwell,西北边是拥有名校的Balwyn,东边是大名鼎鼎的华人区Box Hill。区内人口以本地人和英国、新西兰移民为主。


区内近几年房产交易涨幅非常好,并且一直被誉为安逸,舒适,安全,方便的住宅区。根据澳洲当地网站数据分析结果,也是买家最最渴盼的城区,这一城区每一处挂牌待售的房产都能得到比墨尔本其他城区房产更多的关注。








车站交通


周边中心有Surrey Hills车站(在Belgrave和Lilydale铁路线上)。Union大道从墨尔本中央商务区延伸出,在Belgrave/Lilydale铁路线上。
Surrey Hills 还有Chatham铁路站,在Canterbury 大道以北,处于Stanley Terrace和Junction大道之间。
在北部有109路电车为Surrey Hills服务,此线路从墨尔本港开始,沿着Collins大街(墨尔本中央商务区),以及Whitehorse大道,抵达Box Hill。
在南部,有70路电车,沿着Riversdale 大道,从市区到达位于 Elgar 大道交叉口 Wattle Park终点站。


周边教育资源

与墨尔本各大顶级社区一样,Surrey Hills坐拥墨尔本数一数二的顶级学校。这里私校云集,其中最著名的就是在维州排名第一的女校Presbyterian Ladies College。



① MLC Melbourne 墨尔本排名第二女子私校

② Trinity Grammar School 墨尔本排名第二男子私校

③ Camberwell Girl’s Grammar School

④ Fintona Girls’ school

所谓富人区享有每个城市最优质的教育资源,对每一个家长都至关重要。
对口小校
Chatham Primary School

中学高中
Koonung Secondary College

另外,步行2分钟来到Elgar Road的公交站乘坐767路公交直达迪肯大学。
从Bentley Mansion出发,步行2分钟到Elgar Road上搭乘公交车281、767和768便捷直达华人的“第二故乡”Box Hill Central,驾车5分钟或步行20分钟亦可到达。



